Rue Courtejoie, 5590 - Ciney
Ciney - Rue Courtejoie - Surface commerciale 3
2250 € *Hors Charges
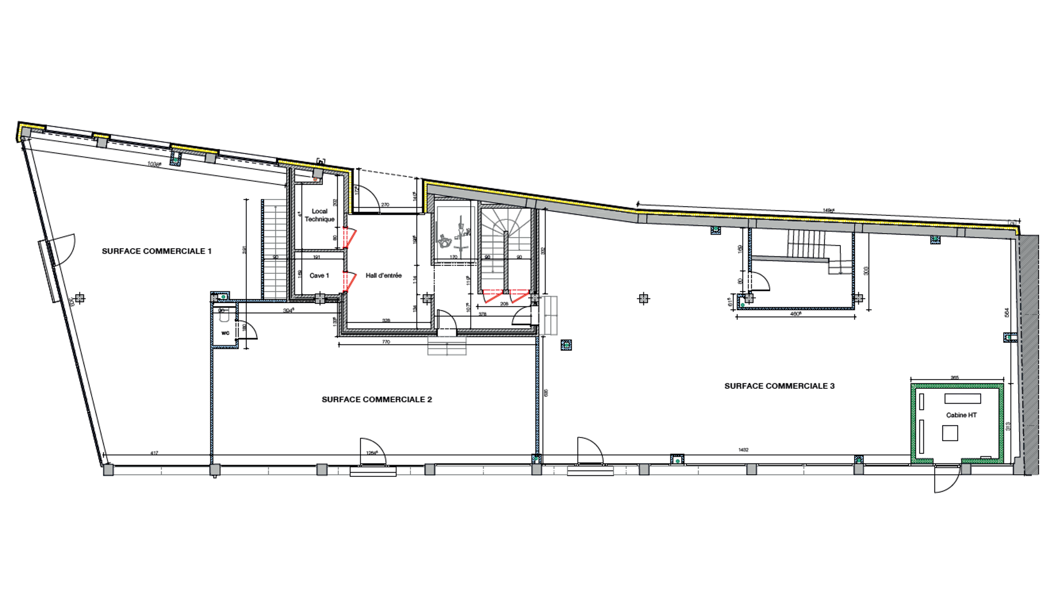
À LOUER – Surface commerciale 173 m² à Ciney
Découvrez cette surface commerciale de 173 m², offrant de nombreuses possibilités d’aménagement pour créer un espace parfaitement adapté à votre activité.
Caractéristiques :
- Surface louée à l’état brut, vous permettant de personnaliser l’agencement selon vos besoins et désidératas.
- Grand espace de rangement / cave inclus.
- Emplacement de premier ordre au centre-ville, assurant grande visibilité et passage important.
Localisation stratégique :
Idéal pour commerces, showrooms ou bureaux nécessitant une excellente visibilité et un emplacement central.
Ce bien vous intéresse ?
Dites-nous ce qui vous intéresse et contactez-nous via le formulaire de contact.
Nous prendrons le temps d’analyser votre demande et de répondre au mieux à vos attentes.
Découvrez tous nos biens en location










Une expertise reconnue
depuis 1996
Forts de près de 30 ans d’expérience, nous pilotons vos projets immobiliers avec rigueur et sérénité, du premier plan à la remise des clés.
Un accompagnement humain
et sur mesure
Nous sommes à vos côtés à chaque étape pour vous guider, vous rassurer et vous permettre d’avancer en toute confiance, sans jamais vous sentir perdu.
Des biens livrés finis,
prêts à vivre
Nous portons une attention toute particulière à vous livrer un bien à la hauteur de vos attentes. Vous emménagez l’esprit léger, dans un logement soigné jusquedans les moindres détails.
Des partenaires de confiance, des
matériaux de qualité
Nous sélectionnons des produits durables et des partenaires fiables pour garantir la qualité de chaque réalisation.